柳东新区的工业企业众多
职工群众的数量庞大
为了更好服务广大职工
为广大职工提供一个
开展文化活动的* 佳场所
政府决定在柳东新区
建设柳东工人文化宫
根据柳州市总工会微信公众号
昨天推送的消息
市政府考虑到全市工会设施的均衡布局
同时为推动柳东新区的发展
决定在官塘划拨30亩土地给市总工会
建设柳东工人文化宫
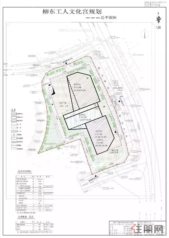
**效果图已经出炉
看来柳东新区又要
增添一座靓丽的建筑了

柳东工人文化宫**效果图,实际以设计图纸为准
据了解,柳东工人文化宫是柳州市
2018年城市建设计划
文化专项19个项目之一
拟定于2019年6月前启动建设



柳东工人文化宫**图、效果图,实际以设计图纸为准
真是羡慕柳东的小伙伴
以后又多一个高大上的学习环境了
除了柳东工人文化宫这一项目
还有一个涉及精神文化建设的项目
已经在如火如荼地建设当中了
那就是柳东新区文化广场

继6月底传来封顶的消息之后
8月10日,柳东新区文化广场项目建设
又有了新进展
8月10日,该项目主体结构已基本完工
蝴蝶造型初现雏形
收尾清场施工完成后
本月中旬进入第二阶段的
外立面施工阶段
柳东新区文化广场
★文献信息服务区建筑面积18000平方米
★咨询服务区建筑面积1500平方米
★学术研究区建筑面积2300平方米
★共享活动区建筑面积4000平方米
★行政业务服务区建筑面积2500平方米
★技术设备区建筑面积5500平方米
★少儿图书馆建筑面积16200平方米
★后勤保障区及地下车库建筑面积10000平方米
(免责申明:本文为转载,对于本文内容我们致力于保护原作者版权,仅为更好地传播信息,别无他用,如涉及侵权,请尽快与我们联系删除,谢谢!)













